21482 W Fm 16 |
|
| Price: | $1,800,000 |
| Property Type: | farms_ranches |
| MLS #: | 25013783 |
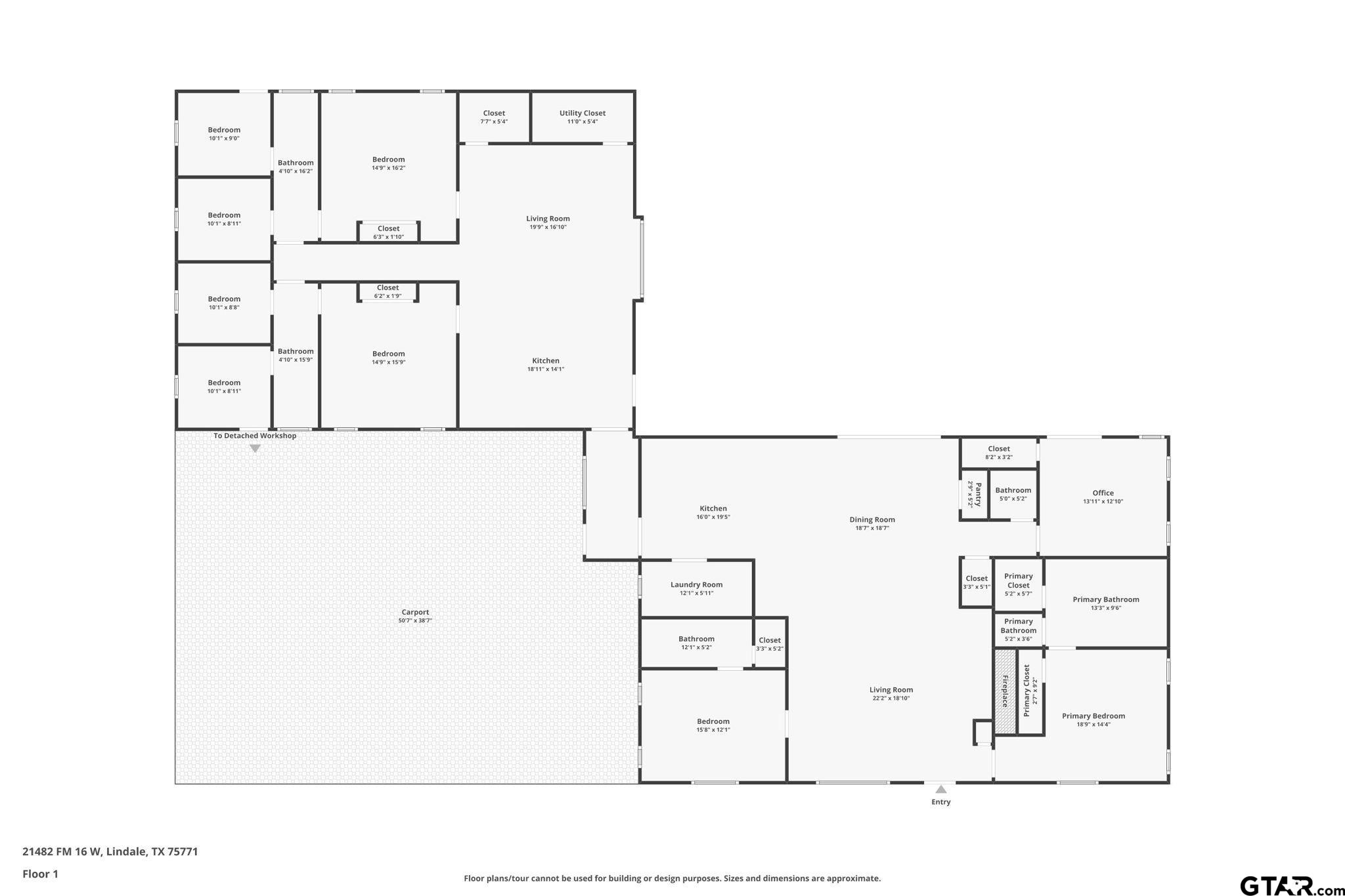
| MOTIVATED SELLERS! Welcome to your Texas retreat, 53+ acres of rolling hills, wooded privacy, and open pasture centered around a thoughtfully designed single-level Barndominium. Built for comfort and efficiency, the home features spray-foam insulation, Bryant multi-speed HVAC with remote access, and upgraded electrical systems throughout. The floor plan offers exceptional flexibility with two distinct living areas, each with its own kitchen and gathering space. This layout supports a range of living arrangements, including private guest quarters, long-term hosting, shared living with added privacy, or a dedicated work, hobby, or studio wing. Multiple bedrooms and full baths are positioned for both connection and separation, while the wraparound porch invites year-round enjoyment of the surrounding landscape. Outside, a six-car covered carport doubles as an entertaining pavilion. A concrete pad is ready for pickleball or outdoor recreation, and the fully powered workshop includes a bathroom and RV hookups. Additional storage is provided via the expanded barn with new lighting. Equestrian features include three fenced pastures, an arena, hay barn, tack room, and three run-in stalls. A working well can be redirected to supply the home, and modern upgrades including Starlink internet, surround sound, and security cameras provide comfort and connectivity. Furnishings, farm equipment and accessories are negotiable, allowing an easy and seamless transition to ranch living. | |
| Area: | Smith |
| Year Built: | 2022 |
| Bedrooms: | Five |
| Bathrooms: | Four+ |
| 1/2 Bathrooms: | 1 |
| Garage: | 0 |
| Acres: | 53.736 |
| CONSTRUCTION : | Metal |
| COOLING : | Central Electric |
| COOLING : | Zoned-2 |
| DINING AREAS : | Kitchen/Eating Combo |
| FENCING : | Metal Fence |
| FENCING : | Barbwire Fence |
| FENCING : | Partial Fence |
| FIREPLACE : | Wood Burning |
| INTERIOR : | Smart Home Features |
| INTERIOR : | Smoke Alarm |
| INTERIOR : | Security System |
| INTERIOR : | Ceiling Fan |
| KITCHEN EQUIPMENT : | Dishwasher |
| KITCHEN EQUIPMENT : | Island |
| KITCHEN EQUIPMENT : | Cooktop-Electric |
| KITCHEN EQUIPMENT : | Oven-Electric |
| KITCHEN EQUIPMENT : | Pantry |
| KITCHEN EQUIPMENT : | Microwave |
| OUTBUILDINGS : | Tack Room |
| OUTBUILDINGS : | Work Shop |
| OUTBUILDINGS : | Stable(s) |
| OUTBUILDINGS : | Metal Outbuilding(s) |
| OUTBUILDINGS : | Storage Building(s) |
| OUTBUILDINGS : | Barn |
| POOL/SPA : | None |
Courtesy: Trowbridge, Lee • Rogers Healy & Associates • 214-368-4663
The data relating to real estate for sale on this website comes in part from the Internet Data Exchange (IDX) of the Greater Tyler Association of REALTORS Multiple Listing Service. The IDX logo indicates listings of other real estate firms that are identified in the detailed listing information. The information being provided is for consumers' personal, non-commercial use and may not be used for any purpose other than to identify prospective properties consumers may be interested in purchasing. This information is deemed reliable, but not guaranteed.
This content last refreshed on 02/17/2026 11:00 AM. Some properties which appear for sale on this web site may subsequently have sold or may no longer be available.